CDC Home

Passive Home Project

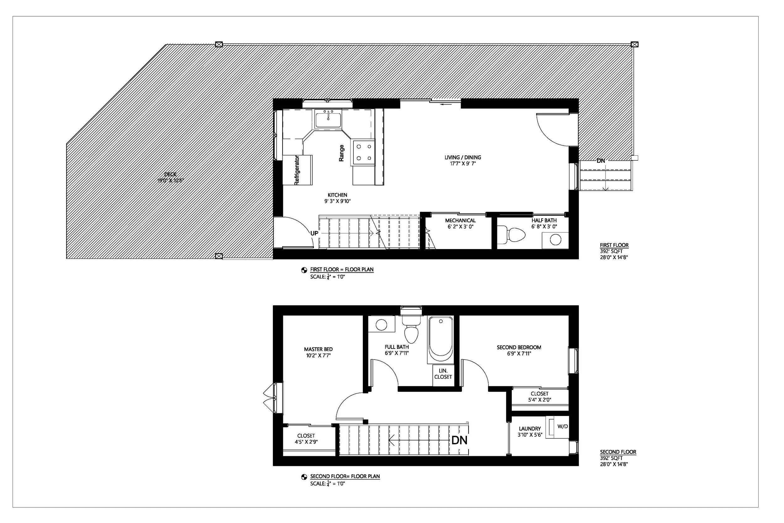
The idea of making a dream home in today’s economy is very difficult. Even homes for the average person to find are unthinkable in some instances. This project will help find, not only an affordable home at a reasonable price, but also have comfort and efficiency that lasts more than 50+ years. The project will reflect the capabilities of a passive home for the “Missing Middle”.

A lot of homes now a days reflect the culture of the United States. Homes are used for 15 years or less and are left to rot. This throws away culture has affected our lifestyles and even the future. Whether you believe in global warming or not, that does not change the fact that we, as humans, affect the environment around us. In the world, architecture and design takes 40% of carbon emissions. That makes the industry the highest contributors to climate change.

Passive homes are a type of design that has a very strong level of energy efficiency while also accommodating comfort throughout indoor and outdoor living. This style of building helps with four major quality issues: thermal control, air control, radiation control, and moisture control. Homes now-a-days only last on average about 15 to 20 years, when they should last longer for generations to come and to help reduce waste. A passive home, where all four major issues are addressed, can be shown to potentially last longer than 50 years. Although quality and longevity are important, cost also comes into play. According to the Phius Standard (High Quality Buildings) the cost of passive homes is only 3-5% more than the conventional building methods. On top of that they also perform 85+% better than conventional buildings as well.

HAUS | Architecture for Modern Lifestyles. “7 Things You Should Know about High Performance Design + Build – Haus: Architecture.” HAUS, haus-arch.com/high-performance-design-build/. Accessed Aug. 2023.

“Passive Building Principles.” Passive Building Principles | Phius Passive Building Principles, www.phius.org/passive-building/what-passive-building/passive-building-principles. Accessed Aug. 2023.

Fall 2023

By: Crystal Delgado Muniz

KEEP SCROLLING

Location:

NEAR North CDC

2430North Central Ave

Indianapolis, IN 46208

A home that showcases the landscape in the local area: river, city, park.

  • A home that is flexible to a diverse group of ages.

  • A home that is designed for different customs and backgrounds.

  • A home that feels like luxury but also stays within affordable range.

  • A long-lasting structure that is environmentally conscious and economically friendly.